各学院:
为更好地为广大学生的学习和生活提供便利,着力改善学生住宿条件,切实解决学生所急所盼,根据学校安排,国资处等有关单位编制了《学生宿舍1—19栋热水进寝方案(征求意见稿)》(附件1)、《学生宿舍院落式改造方案(征求意见稿)》(附件2),现面向广大同学公开征集相关意见建议,请各学院协同做好相关工作。
一、本次意见征集面向对象:
入住在学生公寓1-19栋的学生
二、意见征集相关工作安排:
(一)学工部牵头开展的工作
1.学工部将会同有关部门于近期随机抽取1-19栋学生代表召开座谈会,现场听取各学院学生代表关于两个方案的意见建议(时间、地点另行通知);
2.制作网络问卷,面向广大学生开展线上调研;
3.汇总各学院收集的学生意见建议,形成专题报告,向国资处等相关单位如实反馈。
(二)各相关学院需开展的工作
1.广泛做好宣传发动工作,引导学生积极参加网络问卷意见征集。意见征求二维码如下:
2.结合“不忘初心、牢记使命”主题教育,通过领导干部、辅导员进学生寝室以及走访、座谈等形式,广泛收集掌握学生对两个方案的主要意见建议,形成本院学生意见建议反馈报告(样板参见附件3)。
各学院学生意见建议反馈报告请在11月26日前交学工部汇总,以便整理汇总提供给相关单位完善实施方案,尽快启动后续工作(反馈报告纸质版经学生工作负责人签字后交学生科,并请同时将电子版发到邮箱:xgb2827@qq.com,联系人:郑老师,83032827)。
党委学生工作部(处)
2019年11月20日
附件1:
学生宿舍1-19栋热水进寝方案(征求意见稿)
一、学生宿舍1-19栋基本情况
学生宿舍1-19栋建筑面积共114151平方米,共有房间3094间,其中学生房间数为2982间,其他功能用房112间,住有学生17892人。
学生宿舍1-16栋建设于2003年至2005年间,当初未在房间内设计热水洗浴功能,所有房间卫生间均为暗卫设计,无玻璃窗,通风效果差,热水进寝后可能会产生滑倒、窒息风险。
学生宿舍17-19栋建设于2005年后,房屋设计理念较前期领先,考虑了燃气热水,设有天然气管道。考虑了干湿分区,所有房间卫生间靠建筑物外侧,均有玻璃窗,通风情况良好。同时,学生宿舍17-19栋临时做过教师宿舍周转房,学校为每个房间配有天然气热水器,后来在全部调整为学生宿舍后,考虑到安全问题,取消了所有房间内燃气热水器及天然气管道。综上,目前学生宿舍1-19栋的学生均不能在房间内洗浴。
二、学生的诉求
学生宿舍1-19栋的学生需到学生一食堂北侧的公共浴室刷卡洗浴,极为不便,因此对热水进寝需求十分强烈,无论是校领导与学生面对面、学生意见平台还是主题教育期间搜集的学生调查问卷等,该区域学生都提出希望尽早能实现房间热水洗浴。
三、存在的问题
1、学生宿舍1-16栋本身建筑设计造成了热水改造难问题
由于学生宿舍1-16栋内所有房间卫生间为暗厕设计,若只是简单安装铺设热水管道,存在一定安全隐患,因此需要安全论证,如增加通风设施确保换气、加设预警系统实现报警功能或是整体改造厕所等。
2、公共浴室合同限制学校启动热水进寝改造
2013年7月,为提升公共浴室管理和服务水平,后勤服务总公司代表学校与成都新北晨电子有限公司签订了《优米体育中心成都校区学生公共浴室空气源热泵系统工程(BOT模式)合同》,其中约定:合作期限为10年(2013年8月20日至2023年8月19日),合作期内,甲方(优米体育中心)不得在该项目所在园区新建浴室或以其他方式进行学生洗浴场所改造。否则,甲方须按照该项目已经运行年限年收益的平净值乘上剩余运营年限,给予乙方补偿。由于该合同的存在,目前若我们推进学生宿舍1-19栋热水进寝存在违约风险。若违约,经过初步测算,需补偿400万元左右。
四、学校开展的工作
学校前期已两次启动热水进寝工作,均因面临合同违约需补偿金额大而暂停。目前国资处、后勤服务总公司再次与成都新北晨电子有限公司进行了协商,表达了学校实施学生宿舍1-19栋热水进寝的初衷是满足学生对美好生活的需求,希望提前结束合同,成都新北晨电子有限公司表示愿意配合学校的工作。国资处邀请专业公司进行现场踏勘,针对学生宿舍1-19热水进寝进行了多次论证和专题研究,制订了热水进寝两种方案。
五、学生宿舍1-19栋热水进寝方案
(一) 学生宿舍1-16栋方案
方案一:在原有宿舍卫生间加装洗浴装置,因卫生间结构和安全要求,需安装排气扇、蹲便器盖板等。
优点:
1、施工简单,工期较短;
2、6人共用一间浴室,提升用水舒适度。
缺点:因卫生间空间狭小,虽然已采取了相关措施,但存在因学生身体个体差异产生的不可预知风险。
方案二:两间相邻宿舍阳台共建浴室。
优点:浴室面积较大,通透性较好。
缺点:
1、为解决浴室防水问题,需按程序报规、报建,程序多,工期较长;
2、12人共用一间浴室,幸福指数下降;
3、相邻宿舍使用浴室协调存在难度。
(二)学生宿舍17-19栋方案
热水可直接进寝,不需要较大改造,施工难度和安全风险较低。
2019年11月18日
附件2:
学生宿舍院落式改造方案(征求意见稿)
目前我校学生宿舍功能定位单一,仅仅被当作是学生居住和休息的场所,没有把宿舍与学生学习、教学、科研、育人有机联系起来,没有实现园区化、社区化,学生在寝室难以找到家的归属感,为此,推进宿舍院落式改造,建设“一站式”学生社区十分必要。
学生宿舍院落式改造将尊重现有楼栋原始面貌,尽可能为学生提供学习和生活便利。改造后将实现以下目标:进一步优化整合宿舍资源,逐步实现学生按学院、按培养类型、按管理需求分类集中住宿,实现区域连栋宿舍院落化和园区化管理,打造特色院落文化,实现环境育人。近期,学校拟以学生宿舍1-4号楼(1号院落)院落式改造为试点,探索推进学生宿舍院落式改造和管理工作。
11月6日,学校相关职能部门实地踏勘学生宿舍1-4号楼,本着“以人为本,方便学生,因地制宜,节约资金”的设计初衷和理念,商讨并初步编制了学生宿舍1-4号楼院落式改造方案,内容如下:
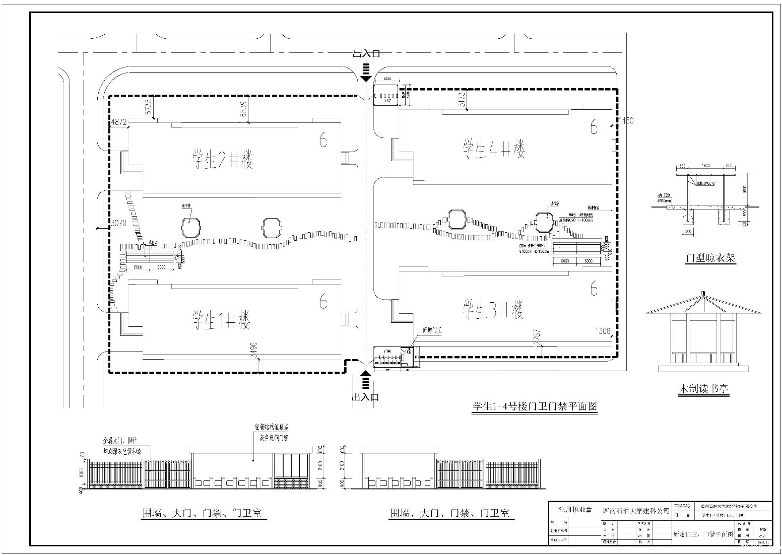
一、学生宿舍1-4号楼院落式改造方案图

二、学生宿舍1-4号楼院落式改造后增设的功能
1、设置读书亭;
2、设置晾晒区;
3、集中设置门卫室及门禁系统,提升服务质量和管理水平。全面开放每栋楼东、西两侧出入口,消除消防安全隐患。同时腾退管理员用房,用作自习室等。
三、计划安排
学生宿舍1-4号楼院落式改造力争2020年春季学期开学前完成改造,投入使用。
四、学生宿舍1-4号楼内近期逐步提供的功能
1、每栋设置1间功能用房,提供自助吹风、打印、咖啡、自动售货等服务;
2、每栋增加1处洗衣区(原一楼楼梯下小卖部位置);
3、每栋根据实际情况设置1间党团活动室,1间自习室;
4、热水引入寝室。
2019年11月18日